Lägenhet
Mysig etta högt upp i Bosvedjan
Bågevägen 282, Sundsvall, Sundsvall
sundsvall och timra

6400
kr/mån
1
rum
36
m²
2026-03-16
Publicerad
Om bostaden
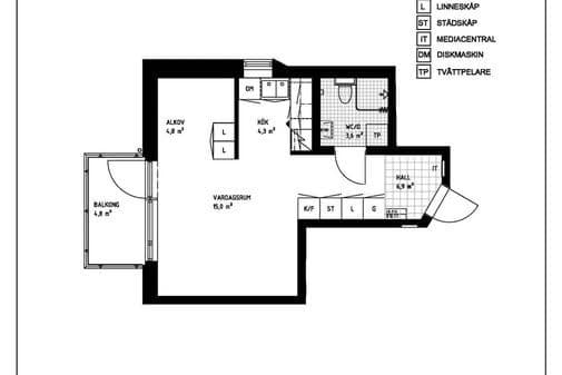
Mysig etta i Bosvedjan, Sundsvall – uthyres! Jag hyr ut min fina och välplanerade lägenhet på Bågevägen 282C, FULLT MÖBLERAD. Jag hyr ut min lägenhet från början av juni till sluten på augusti ev början av September. Perfekt för dig som behöver ett trivsamt boende med bra läge i Sundsvall. 36 KVM fullt möblerad med TV, soffa, säng, köksredskap. Våning 7, högsta våningen dvs med hiss! Diskmaskin Tvätt- och torkmaskin 100/100mbit WiFi 30 minuter gång till sjukhus, 10 minuter med buss 15 minuter buss till Stenstan Goda bussförbindelser Hyran är 6400kr/månad.